Lot 6 PR 1262 Brashear, TX 75420

UPDATED:
Key Details
Property Type Single Family Home
Sub Type Single Family Residence
Listing Status Active
Purchase Type For Sale
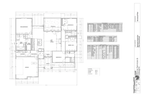
Square Footage 2,323 sqft
Subdivision Hidden Oaks Estates
MLS Listing ID 21017299
Bedrooms 4
Full Baths 3
HOA Fees $200/ann
HOA Y/N Mandatory
Year Built 2025
Annual Tax Amount $946
Lot Size 2.000 Acres
Acres 2.0
Property Sub-Type Single Family Residence
Property Description
Location
State TX
County Hopkins
Direction From HWY 19 S, Turn onto FM 1567 W for about 2 miles, then turn right onto PR 1262 W. From HWY 275 S, Turn onto FM 1567 for about 4 miles, then turn left onto PR 1262 W. Once at Hidden Oaks Estates, lot 6 will be down on the left before cul-d-sac.
Rooms
Dining Room 1
Interior
Interior Features Open Floorplan
Heating Central, Electric
Cooling Ceiling Fan(s), Central Air, Electric
Flooring Luxury Vinyl Plank
Fireplaces Number 1
Fireplaces Type Living Room
Appliance Dishwasher, Electric Cooktop, Electric Oven, Microwave
Heat Source Central, Electric
Laundry Full Size W/D Area
Exterior
Garage Spaces 2.0
Utilities Available Aerobic Septic, All Weather Road, Co-op Electric, Co-op Water
Roof Type Shingle
Total Parking Spaces 2
Garage Yes
Building
Story One
Foundation Slab
Level or Stories One
Schools
Elementary Schools Millergrov
Middle Schools Millergrov
High Schools Millergrov
School District Miller Grove Isd
Others
Virtual Tour https://www.propertypanorama.com/instaview/ntreis/21017299

NEARBY SCHOOL & BUSINESS
GET MORE INFORMATION




